Met Zicht Op?

Masterarbeiten

Mathis Lehna & Tina Todorovic

Die belgische Küste ist in ihrer Bebauung eine Großstruktur: Die erste Reihe entlang des Strandes besteht aus Apartmentriegeln von fast großstädtischen Ausmaßen, dahinter liegt eine empfindliche Polderlandschaft, die von Dörfern, Städten oder Campingplätzen durchschnitten

wird. Diese stark verstädterte Küste folgt einer Logik, die ganz Flandern prägt: Eine tief in der belgischen Gesellschaft verwurzelte Eigentumskultur hat zu einer Zersiedelung der flämischen Landschaft geführt – die Küste bildet da keine Ausnahme. Hier sind es vor allem die Zweitwohnsitze, die einem stark schwankenden saisonalen Leerstand unterliegen – durchschnittlich steht eine Ferienwohnung 80% des Jahres leer. Diesem großen Bauvolumen an untergenutzten Wohnungen steht ein alarmierender Mangel an Wohnraum für die einheimische Bevölkerung gegenüber. Neue Formen des Zusammenlebens müssen gefunden werden! In Oostende, dem Hauptort an der Küste, bietet sich eine Pferderennbahn als Transformationsfläche für eine Großstruktur an, die mit neuen/alternativen Eigentums-und Trägerschaftsformen zyklisches Ferienwohnen mit

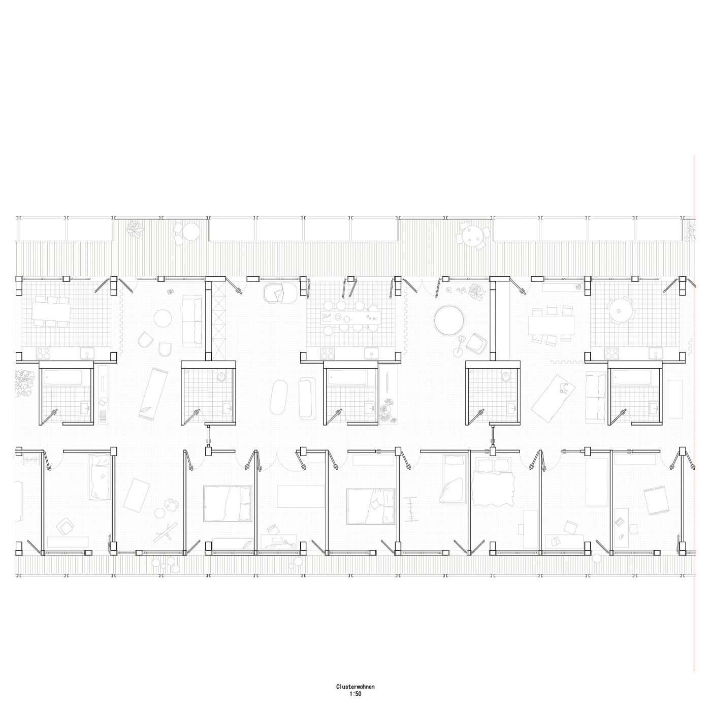
dauerhaften Wohnformen verbindet. Die Ferienwohnungen können wie Strandkabinen auf einen Kern komprimiert werden und die übrigen Flächen den Nachbarwohnungen zugeschlagen werden.Die Struktur ermöglicht vielfältige Wohnformen, die sich in Sequenzen als Nachbarschaften

fassen lassen. Die Großform der Wohnbebauung folgt der Spur der ehemaligen Trabrennbahn und schafft ein Gegenüber zur denkmalgeschützten Tribüne mit Bühnenraum. Weitere öffentliche und kulturelle Inseln in der Großstruktur bereichern das Gebäude mit Nutzungs-angeboten für die

Nachbarschaft. Das Areal der Pferderennbahn wird als neuer Freiraum erschlossen, der sich sowohl der lokalen Küstenvegetation als auch der Nachbarschaft öffnet.